1514 W Fry StreetChicago, IL 60642




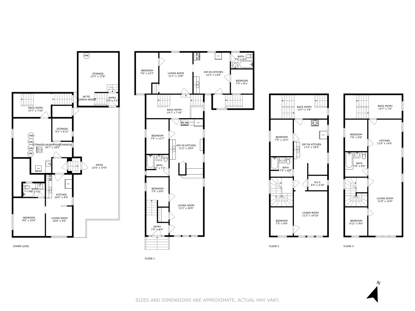
Great opportunity to own this multi-unit 3-Flat with a non-confirming basement unit and non-conforming coach house nestled in center of of East Village/West Town Area/Noble Square Area. Bring your general contractor and interior designer as property is being sold AS-IS. Currently rented- long time tenants for below rental market value. Close to Interstate 90, public transportation to bus #9 Ashland or Chicago Avenue #72. Unit#1 & Unit#2 have forced heating and air conditioning. Unit#3 has forced heating and window air conditioning units. Seller/Sellers Agent do not make legal representations of non-conforming units.
6 days ago | Listing updated with changes from the MLS® | |
2 weeks ago | Status changed to Active | |
2 weeks ago | Listing first seen on site |

Based on information submitted to the MLS GRID as of 2025-10-19 03:16 PM UTC. All data is obtained from various sources and may not have been verified by broker or MLS GRID. Supplied Open House Information is subject to change without notice. All information should be independently reviewed and verified for accuracy. Properties may or may not be listed by the office/agent presenting the information.
Last checked: 2025-10-19 03:16 PM UTC
MRED DMCA Copyright Information Copyright © 2025 Midwest Real Estate Data LLC. All rights reserved.
Did you know? You can invite friends and family to your search. They can join your search, rate and discuss listings with you.